Продается дом, 128.5 кв.м., 1/1 эт
| Стоимость | 12 000 000 |
|---|---|
| Комнат в доме | 3 |
| Категория земли | ИЖС |
| Тип комнат | раздельные |
| Двор | Закрытая территория |
| Право собственности | Собственник |
| Тип парковки | На улице |
| Ремонт | Без ремонта |
| Этаж | 1 |
| Категория земли Avito | Индивидуальное жилищное строительство (ИЖС) |
| Способ связи avito | По телефону и в сообщениях |
| Транспортная доступность avito | Асфальтированная дорога, Остановка общественного транспорта, Железнодорожная станция |
| Электричество | Есть |
| Газоснабжение | Нет |
| Канализация | Есть |
| Материал стен (Авито дома) | Ж/б панели |
| Тип отопления cian | центральное газовое |
| Тип дома cian | Железобетонные панели |
| Водоснабжение (cian) | Центральное |
| Водоснабжение avito | Центральное |
| Канализация avito | Центральная |
| Газ avito | Нет |
| Тип строения | Дом |
| Площадь, кв.м. | 128.5 |
| Площадь участка, сот | 6.7 |
| Этажность | 1 |
| Материал стен | Ж/б панели |
| Населенный пункт | поселок Волховец |
|---|---|
| Улица | улица Руставели |
| Номер дома | 64 |
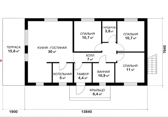
В продаже просторный одноэтажный дом построенный по железобетонной технологии. Комплектация тёплый контур.
Дом построен из сборного трёхслойного железобетона компанией Финстройпанель. Подробнее о технологии строительства вы можете узнать по телефону.
Расположение:
Новгородская область, Савинское сельское поселение, поселок Волховец, ул. Руставели, дом 64
Характеристики:
Площадь помещений: 88,5 м²
Кухня-гостиная: 30,1 м²
Крыльцо: 6,41 м²
Терраса: 15,2 м²
Общая площадь застройки: 110,2 м2
3 спальни; 2 санузла
Один собственник, юридическое лицо.
Помогаем с оформлением ипотеки и ее сопровождением: подбором выгодных ипотечных программ, подготовкой необходимых документов, оформлением сделки в режиме одного окна.

















